Beschrijving

 

** TERMIJN IS VERLOPEN. ER KAN NIET MEER WORDEN GEREAGEERD ** 


Te Huur

 

Datum publicatie: 02 augustus 2024


De gemeente Utrecht (‘’de gemeente’’) zoekt een tijdelijke huurder voor een aantal maatschappelijke ruimtes gelegen in het pand op het Domplein 4-5. Hiervoor schrijft de gemeente een openbare selectie uit. Op deze manier kunnen alle geïnteresseerden via een toetsbare en transparante selectieprocedure meedingen.


Objectinformatie

Adres:                                    Domplein 4-5, 3512 JC te Utrecht

Kadastrale kenmerken:           Gemeente Catharijne, sectie A, nummer 2214 en 3549

Bestemming en gebruik:         Overige zone, bijeenkomst- en onderwijsfunctie

Bouwjaar:                               1925

Vloeroppervlakte:                    Circa 1.082 m2 exclusief gedeeld gebruik gemeenschappelijke en technische ruimtes (gehele pand is circa 4.091 m2)


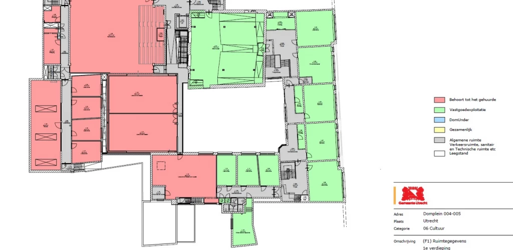
De gemeente heeft plannen om het pand (minus de kelder) aan het Domplein 4-5 over circa ruim een jaar te verbouwen. Voor de tussenliggende periode, vanaf september 2024 tot naar verwachting november 2025, gaat de gemeente het pand voor een gedeelte zelf exploiteren en voor een ander gedeelte tijdelijk verhuren. Deze uitvraag betreft de verhuring van een aantal specifieke ruimtes op de begane grond en eerste verdieping. Zie hiervoor de rood gemarkeerde ruimtes in bijgevoegde plattegronden.


Het pand wordt gedeeld met twee andere gebruikers. Een gebruiker is Stichting Domplein 2013, welke de kelder van het gebouw huurt en tevens het medegebruik heeft van een deel van de foyer. Vanaf 1 oktober a.s. is de andere gebruiker de afdeling vastgoedexploitatie van de gemeente. De afdeling vastgoedexploitatie gaat via het vastgoedloket de overige ruimtes op de begane grond, eerste en tweede verdieping voor flexibele (dag)delen verhuren aan geïnteresseerden. Daarnaast voert de afdeling vastgoedexploitatie het (facilitair) beheer en dagelijks onderhoud uit voor het gehele pand en verzorgen zij de aansluiting voor de nutsvoorzieningen. De kosten hiervan worden naar rato verrekend via maandelijkse servicekosten. Jaarlijks zal er een nacalculatie plaatsvinden. Voor de maand september dient huurder zelf zorg te dragen voor het (facilitair) beheer en de veiligheid van het pand.


Het gehuurde is ingericht als een theater met bijbehorende ruimtes. Omdat de bestemming van het gehuurde ook een onderwijsfunctie heeft zoekt de gemeente een partij die in het gehuurde theateractiviteiten houdt, zoals theaterlessen en -uitvoeringen. Een ander type gebruik vereist een aanzienlijke verbouwing wat – gezien de beperkte duur van de overeenkomst en de bijgaande overlast voor de overige gebruikers – niet gewenst is.


Verder zijn er partijen die regelmatig ruimtes wensen onder te huren in het gehuurde. De gemeente zoekt daarom een huurder die bereid is delen van het gehuurde voor vaste en flexibele dagdelen onder te verhuren aan deze geïnteresseerde partijen. De onderverhuur komt volledig voor rekening en risico van huurder. Waar huurder rekening mee dient te houden is dat de brandweer, op nader overeen te komen dagen, (delen van) het pand voor trainingsdoeleinden wil gebruiken.


Ruimtes op de plattegrond

De aangegeven ruimtes op de plattegrond zijn de minimaal te huren ruimtes. Er is de mogelijkheid een aantal andere ruimtes in het pand erbij te huren. Voorkeuren voor andere bij te huren ruimtes kunnen in de reactie op deze publicatie worden doorgegeven. Aan de genoemde vierkante meters en bedragen in deze publicatie zijn geen rechten te ontlenen. In overleg met huurder wordt het oppervlakte van het gehuurde bepaald en de daarbij horende financiële vergoeding van zowel de huur als de servicekosten.


Huurvoorwaarden

Huuringangsdatum:

1 september 2024 of zo snel als daarna mogelijk


Huurtermijn:

In verband met de beoogde verbouwing wordt er een tijdelijk huurcontract tot 1 november 2025 overeengekomen. Indien de gemeente aan het einde van deze periode aangeeft dat verlenging mogelijk is, is een eenmalige verlengingsoptie van een nader overeen te komen periode tot maximaal 6 maanden mogelijk.


Opzegtermijn:

De huurovereenkomst eindigt van rechtswege na het verstrijken van de overeengekomen huurperiode. Opzegging is hierdoor niet nodig.


Huurprijs:

Beleidsondersteunend:

Indien een huurder voldoet aan de daarvoor gestelde criteria van de Kaderbrief Vastgoed van de Gemeente Kaderbrief Vastgoed 2017 geldt een kostprijs dekkende huur. De kostprijs dekkende huur is nader te bepalen. Er zal naar rato van soort ruimte en gebruik van de eigen en gemeenschappelijke ruimtes een verdeelsleutel worden toegepast om de huurprijs te berekenen. Daarbij wordt uitgegaan van de huidige kostprijs dekkende huur van de gehele begane grond, eerste en tweede verdieping. Deze bedraagt € 392.000,- per jaar exclusief btw en servicekosten.


Niet beleidsondersteunend: marktconforme huur, nader te bepalen. 


BTW:

Wanneer niet geopteerd kan worden voor een met BTW belaste huurprijs wordt de huurprijs ter compensatie van het financiële nadeel dat verhuurder hierdoor lijdt met een nader te bepalen percentage verhoogd.


Servicekosten

Nader te bepalen voor start huurovereenkomst, naar schatting rond de € 175,- per m2 inclusief voorschot nutsvoorzieningen.


Voor de maand september dient huurder zelf het (facilitair) beheer te regelen. Nutsvoorzieningen zijn in september wel in het pand aanwezig. Vanaf 1 oktober 2024 worden servicekosten in rekening gebracht. Dit betreft een vaste maandelijkse vergoeding met jaarlijkse nacalculatie.


Voor zover bijkomende levering van zaken en diensten niet door de verhuurder worden verzorgd dient de huurder zelf voor eigen rekening en risico rechtstreekse overeenkomsten af te sluiten.


Indexering:

De huurprijs en servicekosten worden jaarlijks, voor het eerst 1 jaar na huuringangsdatum verhoogd op basis van het CPI-prijsindexcijfer zoals wordt gepubliceerd door het CBS.


Betalingen:

Per maand vooruit te voldoen.


Zekerheidsstelling:

Waarborgsom of bankgarantie ter grootte van een bruto kwartaalverplichting.


Opleveringsniveau:

In de staat waarin het de ruimte zich op de huuringangsdatum bevindt.


Bijzondere huurvoorwaarden:

1, Er is sprake van medegebruik van het pand door Stichting Domplein 2013 en de vastgoedexploitatie van de gemeente;

2, Huurder is ermee akkoord dat huurder ruimtes onderverhuurd aan nader bekend te maken partijen. Onderverhuur is voor rekening en risico van huurder;

3, De brandweer zal op nader overeen te komen dagen, (delen van) het pand voor trainingsdoeleinden gebruiken.


Huurovereenkomst:

Conform standaard model Gemeente Utrecht, gebaseerd op het ROZ-model 230A BW, met de daarbij behorende Algemene Bepalingen.


Voorbehoud:

Bestuurlijke goedkeuring voor het aangaan van een huurovereenkomst, waarvan een Bibob procedure onderdeel kan uitmaken.

 

Selectiecriteria

De gemeente Utrecht beoordeelt inschrijvingen op basis van objectieve, redelijke en toetsbare criteria. De criteria zijn opgebouwd uit randvoorwaardelijke criteria (voldoet u niet aan één van deze criteria dan maakt u geen aanspraak op een aanbieding vanuit de gemeente Utrecht) en aanvullende criteria. Ten overvloede zij erop gewezen dat de gemeente daarbij een ruime mate van beleidsvrijheid toekomt.


Randvoorwaardelijke criteria



  • Niet accepteren van de voorgeschreven bestemming van het gehuurde (K.O.)
  • Niet accepteren van de huurtermijn (K.O)
  • Het niet accepteren van de naar rato te verdelen huurprijs en servicekosten (K.O.)
  • Er is sprake van één hoofdgebruiker die bereidt is onder te verhuren aan derden (K.O.)
  • Niet accepteren van het voorbehoud bestuurlijke goedkeuring voor het aangaan van een huurovereenkomst (K.O.)
  • Geen positief advies voortvloeiend uit een eventuele Bibob procedure (K.O.)
  • Het (beoogde) gebruik voldoet niet aan het bestemmingsplan (K.O.)
  • De functie in het gehuurde is niet passend op de locatie, bijvoorbeeld omdat algemeen bekend is dat overlast kan worden verwacht in de omgeving en daardoor met succes bezwaar mogelijk is, dan wel dat de openbare orde en veiligheid in het geding komt (K.O.)
  • Het geven van onvoldoende informatie (ook na vragen) (K.O.)

 

Aanvullende criteria


  • De functie bevordert de maatschappelijke invulling van het Domplein (30 punten)
  • Huurder kan uit voorgaande situaties aantonen samen te kunnen werken met medegebruikers in hetzelfde pand en de maatschappelijke invulling van het pand optimaal te benutten (30 punten)
  • Er kan in september 2024 gestart worden met het uitoefenen van activiteiten (20 punten)
  • Samenwerkingsverband, subsidie- of andere financieringsrelatie met de gemeente Utrecht t.b.v. een beleidsdoel of sociaal ondernemer waarbij meer dan 30% van de omzet bijdraagt aan het oplossen van maatschappelijke vraagstukken (20 punten)
  • Door kandidaat gewenste afwijkende voorwaarden en condities ten opzichte van objectinformatie (Min 20 punten (aftrek))



Wilt u aanspraak maken op aanbieding van verhuur?

Indien u in aanmerking wilt komen voor het huren van het object dan dient u uw interesse en onderbouwing uiterlijk voor donderdag 22 augustus, 17.00 uur, kenbaar te maken door middel van een gemotiveerd bericht aan Florine Kluit via florine.kluit@utrecht.nl, onder vermelding van ”Interesse huur Domplein 4-5”. Indien uw bericht na deze termijn wordt ontvangen, wordt u niet meer meegenomen als geïnteresseerde in de selectieprocedure. Het staat de gemeente vrij om op ieder moment de procedure te beëindigen en niet over te gaan tot een aanbieding van verhuur. U heeft in een dergelijk geval geen enkel recht op vergoeding van kosten en/of schade op welke wijze dan ook.


Beoordeling van uw reactie

De vastgoedafdeling van de gemeente zal uw gemotiveerde reactie beoordelen.


Er kunnen zich dan twee situaties voordoen:

  1. U voldoet aan de gestelde criteria en heeft de hoogste score. De gemeente Utrecht beoordeeld u als meest geschikte potentiële huurder. De gemeente kan dan de stukken opvragen waaruit u kan aantonen dat u voldoet aan de gestelde criteria. Deze stukken dient u binnen 5 werkdagen op verzoek van de gemeente toe te sturen. De gemeente zal u uitnodigen voor een verificatiegesprek. Indien het verificatiegesprek positief is zal de gemeente u een huurvoorstel doen toekomen. Indien de als eerste geëindigde geïnteresseerde afvalt kan de gemeente besluiten de als tweede geëindigde geïnteresseerde uit te nodigen voor een verificatiegesprek, of de hele procedure opnieuw op te starten. 
  2. U voldoet niet aan de gestelde criteria of heeft niet de hoogste score. U maakt dan geen aanspraak op aanhuur van de ruimte en de gemeente zal u hierover informeren.

Voor deze deelnemers bestaat de mogelijkheid om in rechte op te komen tegen dit bericht van afwijzing, uitsluitend door het aanhangig maken van een procedure in kort geding bij de Voorzieningenrechter in Utrecht. De termijn hiervoor is gesteld op twintig kalenderdagen na de verzenddatum van het bericht van afwijzing. Deze termijn is een vervaltermijn, waarna de deelnemers niet meer in rechte kunnen opkomen tegen de afwijzing.


Er meldt zich geen gegadigde binnen de gestelde termijn

Indien zich gedurende de hierboven gestelde reactietermijn van 20 kalenderdagen geen gegadigden melden blijft deze openbare selectie open en is de gemeente Utrecht gerechtigd een huurovereenkomst aan te gaan met de eerste gegadigde die zich meldt.


Vragen?

Bij vragen, neem contact op met Florine Kluit, assetmanager vastgoed, via florine.kluit@utrecht.nl. Indien de vraag en het antwoord relevant is voor overige gegadigden wordt dit op deze website gepubliceerd. 






Domplein 4-5

3512JC Utrecht

Bekijk op de kaart
  • Prijs:
    € 0,00 per jaar