0) ? window.innerWidth : screen.width;
if (width > 768) {
slider = true
} else {
slider = false
}"
>
Scenario A
Gezocht: huurder(s) voor Oostbroekselaan 64
Oppervlakte
0 m2
Capaciteit
0 personen
Contact met de locatie:
Gezocht: huurder(s) voor Oostbroekselaan 64
Oostbroekselaan 64
3584 BD Utrecht
Beschrijving
Scenario A
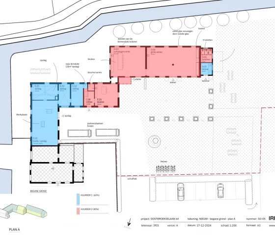
In scenario A wordt het gebouw in twee delen gesplitst zoals zichtbaar op de afbeeldingen hieronder en in bijlage 4. In dit scenario zal het linkerdeel (0.22, 0.24, 0.25 en 0.32) minimaal worden gerenoveerd. Deze ruimtes worden aangemerkt als schuur/ werkplaats/opslag.
Ruimte 1 ter grootte van circa 390 m² VVO (blauw)
Ruimte 2 ter grootte van circa 243 m² VVO (rood)
U kunt ervoor kiezen om als huurder 1 of als huurder 2 in te schrijven, of voor het gehele gebouw.
Oostbroekselaan 64
3584 BD Utrecht
-
Prijs:€ 0,00 per maand
-
Uitstraling:Historisch ▪ Klassiek ▪ Landelijk
Andere ruimtes
van Gezocht: huurder(s) voor Oostbroekselaan 64