Beschrijving

** TERMIJN IS VERLOPEN. ER KAN NIET MEER WORDEN GEREAGEERD **


Te Huur

Datum publicatie: 16 september 2024


De gemeente Utrecht (‘’de gemeente’’) zoekt een huurder voor de culturele invulling van een gedeelte van het pand, een bedrijfsruimte welke is gelegen aan de Boorstraat 107. Hiervoor schrijft de gemeente een openbare selectie uit. Op deze manier kunnen alle geïnteresseerden via een toetsbare en transparante selectieprocedure meedingen.


Objectinformatie

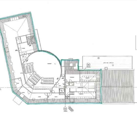
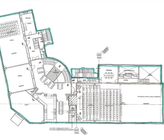
Adres:                                    Boorstraat 107, 3513 SE, Utrecht

Kadastrale kenmerken:        Gemeente Catharijne, sectie B, nummer 8490 gedeeltelijk

Bestemming en gebruik:      Maatschappelijk, bijeenkomstfunctie

Vloeroppervlakte:                 Circa 1500 m2 VVO


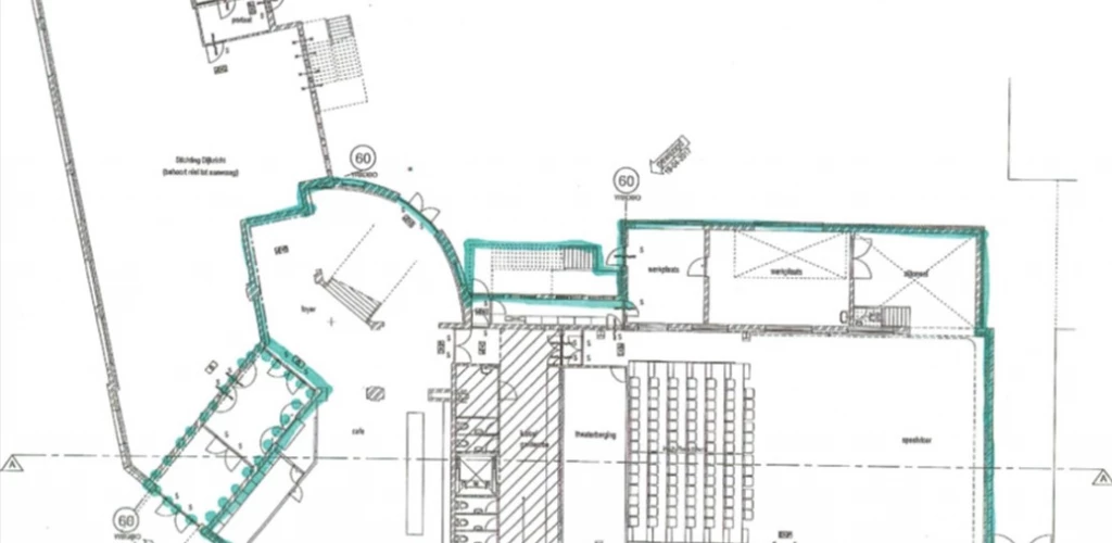
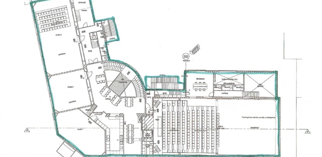
Het pand, gelegen aan de Boorstraat 107, ligt op de hoek van de Boorstraat en de Spijkerstraat. Begin 1900 werd op deze locatie een basisschool gebouwd. Eind vorige eeuw is de basisschool omgebouwd tot theater met daarbij een werkplaats voor jonge theatermakers. Het pand bestaat uit drie lagen, de begane grond, eerste en tweede verdieping. Achter het pand is een tuin met berging. Op de begane grond, links van de hoofdingang, is Stichting Dijckzigt gevestigd.


Het pand biedt op dit moment ruimte aan podiumkunsten en andere culturele activiteiten. De gemeente zoekt bij voorkeur een partij die aansluit op het huidig gebruik. Het bestemmingsplan staat verschillende maatschappelijke instellingen en diensten toe, zoals onder andere sociaal-culturele diensten. Additionele horeca is toegestaan in het pand. Bij additionele horeca gaat het om horeca-activiteiten die ondergeschikt zijn aan de hoofdfunctie die ter plaatse is toegestaan. Zie het Omgevingsloket voor uitgebreide informatie over de mogelijkheden.


De gemeente zoekt een(hoofd)huurder of een samenwerkingsverband van meerdere huurders. In het geval van een samenwerkingsverband wordt één rechtspersoon als penvoerder aangewezen die als gemachtigde van het samenwerkingsverband optreedt. Het is mogelijk voor huurder om ruimtes in het gehuurde onder te verhuren na toestemming en onder de gestelde voorwaarden van verhuurder.


De huidige huurder heeft een aantal aanpassingen aan het pand verricht en/of inventaris aangeschaft, zoals onder andere de inrichting van de drie theaterzalen (beamer, geluidsinstallatie, theaterlicht, inschuifbare tribunes en stoelen), een volledige ingerichte bar en keuken met (terras)meubilair, kantoormeubilair en -materialen. Zie de link voor de technische lijst: https://hethuisutrecht.nl/Ruimte%20huren/technische-lijst. De voorkeur van de huidige huurder is dat dit wordt overgenomen. De overname en overdrachtskosten zijn tussen huidige en nieuwe huurder onderling af te stemmen.


Er is mogelijkheid om het pand te bezichtigen op donderdag 26 september van 15.00 tot 16.30 uur. Indien u van deze mogelijkheid gebruik wilt maken, dient u zich aan te melden door uiterlijk op maandag 23 september een email te sturen aan florine.kluit@utrecht.nl.


Huurvoorwaarden

Huuringangsdatum:

Januari of februari 2025, exacte datum nader overeen te komen


Huurtermijn:

De overeenkomst loopt tot en 31 december 2028. Vervolgens wordt de overeenkomst voortgezet voor een aansluitende periode van 4 jaar. 


Opzegtermijn:

Beëindiging van deze overeenkomst vindt plaats door opzegging door Huurder aan Verhuurder of door Verhuurder aan Huurder tegen het einde van een lopende huurperiode met inachtneming van een opzegtermijn van tenminste 12 maanden.


Huurprijs:

Beleidsondersteunend: Indien een huurder voldoet aan de daarvoor gestelde criteria van de Kaderbrief Vastgoed (2017) geldt een kostprijs dekkende huur. Dit houdt in dat wanneer er hoofdzakelijk (minimaal 70%) een beleidsondersteunende invulling (zoals kunst en cultuur), wordt gegeven aan het pand door huurder en eventuele onderhuurders, een kostprijs dekkende huur wordt gerekend. De jaarlijkse kostprijs dekkende huur voor het te huren gedeelte van het pand bedraagt: € 120.285,- (peildatum 1/1/25).


Niet beleidsondersteunend: marktconforme huur, nader te bepalen. 


BTW:

Wanneer niet geopteerd kan worden voor een met BTW belaste huurprijs wordt de huurprijs ter compensatie van het financiële nadeel dat verhuurder hierdoor lijdt met een nader te bepalen percentage verhoogd.


Servicekosten:

De jaarlijkse servicekosten ten behoeve van huurdersonderhoud, uitgevoerd door eigenaar, bedragen op dit moment €9.168,- voor het gehele verhuurbaar vloeroppervlak van 1721 m2. Het gehuurde omvat 87% van het totale pand. Daarmee komen de servicekosten uit op €7.996,- per jaar exclusief btw. Deze bedragen kunnen bij start overeenkomst in verband met indexering nog aangepast worden.


Indexering:

De huurprijs en servicekosten worden jaarlijks, voor het eerst 1 jaar na huuringangsdatum verhoogd op basis van het CPI-prijsindexcijfer zoals wordt gepubliceerd door het CBS.


Betalingen:

Per maand vooruit te voldoen.


Zekerheidsstelling:

Waarborgsom of bankgarantie ter grootte van een bruto kwartaalverplichting.


Opleveringsniveau:

In de staat waarin de bedrijfsruimte zich op de huuringangsdatum bevindt.


Bijzondere huurvoorwaarden:

1. Een aantal ruimten in het pand op de begane grond zijn verhuurd aan een andere partij, zijnde Stichting Dijckzigt. Deze partij maakt mede gebruik van de entree. Huurder en Stichting Dijckzigt maken gezamenlijk afspraken over het medegebruik van deze entree;


2. De kosten voor de levering van energie (gas, elektriciteit en water) worden door huurder en Stichting Dijckzigt gedeeld. De hoofdaansluiting komt op naam van huurder en rekent naar aandeel van de kosten af met Stichting Dijckzigt;


3. De tuin aan de achterzijde van het gebouw maakt deel uit van het gehuurde. Het is voor Stichting Dijckzigt toegestaan hier (bak-)fietsen te stallen;


4. De huurder draagt zorg voor dat overlast aan omwonenden, veroorzaakt door de activiteiten in het gehuurde of de buitenruimte, wordt voorkomen;


5. In afwijking van hetgeen in de algemene bepalingen hieromtrent is bepaald, komen (verplichte) keuringen, onderhoud en/of op last van de overheid en/of nutsbedrijven te nemen maatregelen die betrekking hebben op (het gebruik van) de in het gehuurde aanwezige waterinstallatie(s) in de ruimste zin des woords voor rekening van Huurder, ook indien Verhuurder degene is die van overheidswege tot het nemen van dergelijke maatregelen wordt aangesproken.


6. Indien Verhuurder de aan Huurder verleende subsidie voor de activiteiten die worden uitgeoefend in het gehuurde substantieel vermindert, waardoor ook op langere termijn een sluitende exploitatie van het gebouw aan de Boorstraat 107 door Huurder niet mogelijk is, zullen partijen in goed overleg (met inachtneming van elkaars belangen, en de aard en strekking van de tussen partijen afgesloten overeenkomst) bezien, of en onder welke voorwaarden, deze huurovereenkomst zal worden aangepast. Die aanpassing kan onder meer zijn: een wijziging van het gebruik van het gehuurde, de huurprijs, of het tussentijds opzeggen van de huurovereenkomst. Partijen zullen niet op onredelijke gronden hun goedkeuring aan een wijziging van de huurovereenkomst onthouden. Indien de overeenkomst kan worden opgezegd, bedraagt de opzegtermijn twaalf maanden.


Monumentale status:

Geen monumentale status


Huurovereenkomst:

Conform standaard model Gemeente Utrecht, gebaseerd op het ROZ-model 230A BW, met de daarbij behorende Algemene Bepalingen.


Voorbehoud:

Bestuurlijke goedkeuring voor het aangaan van een huurovereenkomst, waarvan een Bibob procedure onderdeel kan uitmaken.


Selectiecriteria

De gemeente Utrecht beoordeelt inschrijvingen op basis van objectieve, redelijke en toetsbare criteria. De criteria zijn opgebouwd uit randvoorwaardelijke criteria, (voldoet u niet aan één van deze criteria dan maakt u geen aanspraak op een aanbieding vanuit de gemeente Utrecht) en aanvullende criteria. Het staat de gemeente vrij om geen overeenkomst aan te gaan met een van de partijen die zich hebben ingeschreven of een nieuwe selectieprocedure te starten, wanneer blijkt dat partijen niet of onvoldoende punten scoren op de aanvullende criteria. Ten overvloede zij erop gewezen dat de gemeente daarbij een ruime mate van beleidsvrijheid toekomt.


Randvoorwaardelijke criteria

Het niet accepteren van de huursom en huurvoorwaarden, zoals hierboven weergegeven en de huurovereenkomst conform het standaard model van de gemeente Utrecht.


Het niet voldoen aan de volgende voorwaarde (weging: Knock-Out):                                                                                                                         


  •   Het niet accepteren van het voorbehoud bestuurlijke goedkeuring voor het aangaan van een huurovereenkomst;
  •   Geen positief advies voortvloeiend uit een eventuele Bibob procedure;
  •   Het (beoogde) gebruik voldoet niet aan het bestemmingsplan;
  •   De functie in het gehuurde is niet passend op de locatie, bijvoorbeeld omdat algemeen bekend is dat overlast kan worden verwacht in de omgeving en daardoor met succes bezwaar mogelijk is, dan wel dat de openbare orde en veiligheid in het geding komt;
  •  Het geven van onvoldoende informatie (ook na vragen).


Aanvullende criteria

Voor de volgende aanvullende criteria worden verschillende punten gegeven.


1. Plannen huurder (50 punten totaal)

Uit de plannen die huurder overlegt blijkt het volgende:


  • Dat huurder voor een diverse en inclusieve doelgroep een podiumfunctie en/of publieksprogramma aanbiedt (maximaal 20 punten);
  • Dat huurder het gehuurde gebruikt of laat gebruiken voor repetities voor professionele makers en/of talentontwikkeling binnen de podiumkunsten (maximaal 20 punten);
  • Dat huurder zelf of via een onderhuurder culturele activiteiten gericht op buurtbewoners, amateurkunst of cultuurparticipatie aanbiedt (maximaal 10 punten).


De bovenstaande punten worden op basis van de plannen zowel kwalitatief als kwantitatief beoordeeld. Daarnaast wordt ook gekeken of de plannen aansluiten bij het door huurder opgestelde ondernemingsplan. Zorg daarom dat u zowel inhoudelijk het beoogde gebruik specificeert als ook hoe vaak u denkt dat de ruimtes worden gebruikt.


 2. Ondernemingsplan (35 punten totaal)

Huurder kan een gedegen ondernemingsplan aanleveren, waar onder andere in is opgenomen:


  • Een financieringsplan;
  • Bij een reeds bestaande partij, de afgelopen drie jaarrekeningen;
  • Een risicomatrix met de eventueel te nemen maatregelen;
  • Hoe huurder het beheer van het pand voor ogen heeft;
  • Hoe en door wie de financiële administratie gevoerd wordt.


Punten worden toegekend wanneer alle vijf bovenstaande vragen beantwoord zijn. Mocht een onderdeel missen worden er geen punten toegekend. Per aangeleverd onderdeel is er een percentage van het totaal aantal punten te krijgen (100% is 35 punten).


  • Het financieringsplan bestaat uit een investeringsplan, prognose, financieringsplan en kas planning (maximaal 20% van de punten);
  • De overhandigde jaarrekeningen voldoende inzicht geven in het eigen vermogen ten opzichte van het vreemd vermogen en dit de solvabiliteit ten goede komt (maximaal 20% van de punten);
  • Er duidelijk beschreven is welke maatregelen er getroffen worden in het geval van risico’s, bijvoorbeeld bij het wegvallen van subsidie (maximaal 20% van de punten);
  • Huurder duidelijk het beheer van het pand kan verwoorden (maximaal 20% van de punten);
  • Bij het geven van informatie over het voeren van de financiële administratie, bij voorkeur extern belegd (maximaal 10% van de punten);
  • Gemeente acht de partij voldoende in staat een financieel gezonde onderneming te runnen en een pand te beheren (maximaal 10% van de punten).


3. Huurder heeft een samenwerkingsverband, subsidie- of andere financieringsrelatie met de gemeente Utrecht t.b.v. een beleidsdoel of is aantoonbaar een sociaal ondernemer (15 punten).


4. Door kandidaat gewenste afwijkende voorwaarden en condities ten opzichte van objectinformatie (Minus 20 punten, aftrek).


Wilt u aanspraak maken op aanbieding van verhuur?

Indien u in aanmerking wilt komen voor het huren van het object dan dient u uw interesse en financiële en inhoudelijke onderbouwing uiterlijk voor dinsdag 8 oktober 2024, 17:00 uur kenbaar te maken door middel van een gemotiveerd bericht aan Florine Kluit via XXX, onder vermelding van ”Interesse huur Boorstraat 107”. Indien uw bericht na deze termijn wordt ontvangen, wordt u niet meer meegenomen als geïnteresseerde in de selectieprocedure. Het staat de gemeente vrij om op ieder moment de procedure te beëindigen en niet over te gaan tot een aanbieding van verhuur. U heeft in een dergelijk geval geen enkel recht op vergoeding van kosten en/of schade op welke wijze dan ook.


Beoordeling van uw reactie

De vastgoedafdeling van de gemeente zal uw gemotiveerde reactie beoordelen. Er kunnen zich dan twee situaties voordoen:


  1. U voldoet aan de gestelde criteria en heeft de hoogste score. De gemeente Utrecht beoordeeld u als meest geschikte potentiële huurder. De gemeente kan dan de stukken opvragen waaruit u kan aantonen dat u voldoet aan de gestelde criteria. Deze stukken dient u binnen 5 werkdagen op verzoek van de gemeente toe te sturen. De gemeente zal u uitnodigen voor een verificatiegesprek. Indien het verificatiegesprek positief is zal de gemeente u een huurvoorstel doen toekomen. Indien de als eerste geëindigde geïnteresseerde afvalt kan de gemeente besluiten de als tweede geëindigde geïnteresseerde uit te nodigen voor een verificatiegesprek, of de hele procedure opnieuw op te starten.
  2. U voldoet niet aan de gestelde criteria of heeft niet de hoogste score. U maakt dan geen aanspraak op aanhuur van de ruimte en de gemeente zal u hierover informeren.


Voor deze deelnemers bestaat de mogelijkheid om in rechte op te komen tegen dit bericht van afwijzing, uitsluitend door het aanhangig maken van een procedure in kort geding bij de Voorzieningenrechter in Utrecht. De termijn hiervoor is gesteld op twintig kalenderdagen na de verzenddatum van het bericht van afwijzing. Deze termijn is een vervaltermijn, waarna de deelnemers niet meer in rechte kunnen opkomen tegen de afwijzing.


Er meldt zich geen gegadigde binnen de gestelde termijn

Indien zich gedurende de hierboven gestelde reactie termijn van 25 kalenderdagen geen gegadigden melden blijft deze openbare selectie open en is de gemeente Utrecht gerechtigd een huurovereenkomst aan te gaan met de eerste gegadigde die zich meldt.


Vragen?

Bij vragen, neem contact op met Florine Kluit, assetmanager vastgoed, via XXX. Indien de vraag en het antwoord relevant is voor overige gegadigden wordt dit op deze website gepubliceerd.

Oppervlakte 1.500 m2
Capaciteit 0 personen
Aantal ruimtes 1 ruimtes
  • Locatiesoort:
    Openbare inschrijvingen ▪ Gemeente panden ▪ Ateliers en werkplaatsen ▪ Danszalen ▪ Theater en concertzalen
  • Activiteiten:
    Creatief Amateur ▪ Creatief Professioneel ▪ Theater ▪ Wijkactiviteiten