Beschrijving

 

Te Huur 

 

Datum publicatie: 12 november 2025 

 

De gemeente Utrecht (‘’de gemeente’’) zoekt een huurder voor de maatschappelijke invulling voor het pand aan de Hoefijzerstraat 10. Hiervoor schrijft de gemeente een openbare selectie uit. Op deze manier kunnen alle geïnteresseerden via een toetsbare en transparante selectieprocedure meedingen.  

 

Objectinformatie 

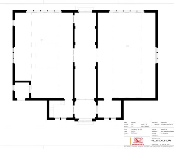
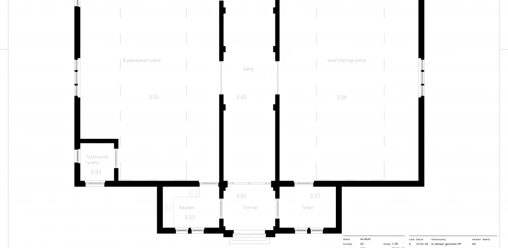
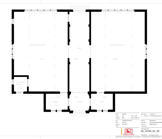
Adres: Hoefijzerstraat 10, 3572 BW Utrecht 

Bestemming: Maatschappelijk  

Gebruikdoel: Bijeenkomstfunctie 

Vloeroppervlakte: Circa 378 m2 BVO en 339 m2 VVO 

 

Het pand, gelegen aan de Hoefijzerstraat 10, wordt ook wel de 'Snijzaal’ genoemd. Het is een gemeentelijk monument gebouwd rond 1911. Oorspronkelijk gebouwd als sectiegebouw van het Instituut voor Parasitaire en Infectieziekten van de Faculteit der Diergeneeskunde van de Rijksuniversiteit. Het oorspronkelijke gebruik is nog goed terug te zien in het pand. De betegelde muren, granito vloeren, ijzeren blaken met kettingen en katrollen, wasbakken en de lange hardstenen snijtafels.  

 

Invulling 

Op dit moment wordt het pand gebruikt voor de huisvesting van cultuur. Naast huisvesting, wordt er gerepeteerd voor voorstellingen in de podiumkunsten, incidenteel aangevuld met bezoekersactiviteiten.  

 

De gemeente wil bij voorkeur het huidige gebruik voortzetten, zodat het pand beschikbaar blijft voor de cultuursector, met name voor huisvesting, en het repeteren en presenteren van voorstellingen in de podiumkunsten, omdat deze invulling bijdraagt aan de behoefte aan ontwikkelruimte voor de cultuursector en een solide keten van opleidingen, werkruimte en presentatieplekken in de stad. In het kader van multifunctioneel ruimtegebruik kan dit aangevuld worden met overige culturele activiteiten, bijvoorbeeld op het gebied van cultuurparticipatie. 

 

Dit is in lijn met de pijlers van de Cultuurnota 2025-2028 en de doelstelling ten aanzien van culturele voorzieningen uit het uitvoeringsprogramma huisvesting culturele en creatieve sector 2025-2028. We hanteren daarbij de volgende definities: 

 

Cultuursector: de cultuursector omvat amateurkunst en cultuureducatie, archieven, architectuur en stedenbouw, beeldende kunst en vormgeving, dans, film, landschapsarchitectuur, letteren en bibliotheken, media, monumenten en archeologie, musea, muziek en muziektheater, en theater. 

 

Multifunctioneel ruimtegebruik: het gebruik van één fysieke ruimte voor verschillende doeleinden, zoals werk, ontmoetingen, culturele activiteiten en evenementen. Dit bevordert efficiëntie en flexibiliteit, waardoor ruimtes beter kunnen inspelen op veranderende behoeften en het gebruik van bestaande infrastructuur maximaliseren. 

 

Nota Bene: De huidige huurder huurt naast het pand aan de Hoefijzerstraat 10 ook de theaterzaal in de Paardenkathedraal. Dit pand is geen gemeentelijk vastgoed; voor vragen over dit pand verwijzen we u naar de eigenaar: het K.F. Hein Fonds. 

 

Bestemming 

De bestemming volgens het omgevingsplan op het pand is maatschappelijk. Hieronder valt ook de aanduiding ‘culturele voorziening’. Het pand is geschikt om gebruikt te worden ten behoeve van voorzieningen inzake welzijn, volksgezondheid, cultuur, religie, sport, onderwijs, openbare orde en veiligheid en daarmee gelijk te stellen sectoren, met uitzondering van bioscopen.  

 

Kostprijsdekkende- of markthuur  

Als u een subsidierelatie heeft met de gemeente Utrecht waaruit ook de huisvestingslasten betaald moeten worden of de gemeente heeft een langdurige inkooprelatie met u, ondersteunt u het beleid van de gemeente Utrecht. U betaalt in deze gevallen een kostprijsdekkende huur in plaats van een hogere marktconforme huur.  

 

U kunt ook het beleid van de gemeente Utrecht ondersteunen als: 

  1. Uw kerntaak direct bijdraagt aan de effectdoelstellingen van de gemeente Utrecht; 
  2. U in uw statuten heeft vastgelegd geen winstoogmerk te hebben; 
  3. Uw activiteiten gericht zijn op de gemeente Utrecht en aanwijsbaar ten goede komen aan inwoners van de gemeente Utrecht.  

 

Voor deze drie punten levert u een onderbouwing aan die wij toetsen. We toetsen ook of uw activiteiten niet in strijd zijn met de wet, het algemeen belang, de openbare orde, of gemeentelijk beleid en of we binnen de wettelijke kaders zoals de Wet Markt en Overheid, met een kostprijsdekkende huur mogen rekenen. Voor deze twee punten hoeft u geen onderbouwing aan te leveren. Er mag met een kostprijsdekkende huur gerekend worden wanneer er hoofdzakelijk (minimaal 80% van het pand in oppervlakte en/of het gebruik van het pand in uren) een beleidsondersteunende invulling (zoals kunst en/of cultuur) wordt gegeven aan het pand door huurder en eventuele onderhuurders. Indien de geselecteerde beleidsondersteunende partij/huurder in de loop van de huurperiode niet langer voldoet aan de criteria van beleidsondersteunende partij als bedoeld in de Vastgoednota 2025-2030 dan wordt de huurprijs aangepast naar een markthuur. Voor niet beleidsondersteunende partijen geldt volgens de Beleidsnota Vastgoed 2025-2030 een markthuur. 

 

Huurvoorwaarden  

Huuringangsdatum: 

Per 1 augustus 2026 of zoveel later als dat nodig in verband met uitvoeren van werkzaamheden in het kader van gepland onderhoud of verduurzaming 

 

Huurperiode: 

De overeenkomst wordt aangegaan voor 5 jaar. Vervolgens wordt de overeenkomst voortgezet voor een aansluitende periode van nog eens 5 jaar met daarna een jaarlijkse verlenging.  

 

Indien gewenst is de gemeente Utrecht bereid de huurtermijn gelijk te laten lopen met de vierjarige cultuurnotaperiodes (huidige periode 2025-2028, volgende periode 2029-2032).  


Opzegtermijn: 

Beëindiging van de overeenkomst vindt plaats door opzegging tegen het einde van een huurperiode met inachtneming van een termijn van tenminste één jaar. 

 

Indien verhuurder (de gemeente Utrecht in de rol van subsidieverlener) de aan huurder verleende subsidie, of subsidies van derden, voor de activiteiten die zullen worde uitgeoefend in het gehuurde, substantieel wijzigt, vermindert of geheel beëindigt, waardoor een sluitende exploitatie niet mogelijk is/ blijkt, zullen partijen in goed overleg en met inachtneming van elkaar belangen, onderhavige overeenkomst aanpassen dan wel tussentijds beëindigen met een opzegtermijn van tenminste zes (6) maanden.  

 

Huurprijs: 

Beleidsondersteunend: De jaarlijkse kostprijs dekkende huur bedraagt: € 36.483,63 (€107,47 per m2 VVO).  

Niet beleidsondersteunend: De jaarlijkse marktconforme huurprijs bedraagt: € 49.000,- (€144,- per m2 VVO). 


In de komende tijd wordt onderzocht of er nog aanpassingen aan het pand worden verricht op het gebied van onderhoud en verduurzaming. Hierdoor kan de huurprijs nog wat wijzigen ten opzichte van de genoemde huurprijs. De wijziging zal onderbouwd worden met documentatie betreffende de uitgevoerde maatregelen.  

 

BTW: 

Wanneer niet geopteerd kan worden voor een met BTW belaste huurprijs wordt de huurprijs ter compensatie van het financiële nadeel dat verhuurder hierdoor lijdt met een nader te bepalen percentage verhoogd. 

 

Servicekosten 

Circa €1.323 per jaar. Dit kan eventueel nog veranderen door nader overeen te komen afspraken 


Energiekosten 

Het pand wordt verwarmd middels stadsverwarming. De aansluiting van deze stadsverwarming verloopt via een tussenmeter via het eveneens gemeentelijke pand aan de Biltstraat 166. Er wordt onderzocht of het pand aangesloten kan worden op een eigen voorziening. 


Indexering: 

De huurprijs en servicekosten worden jaarlijks, voor het eerst 1 jaar na huuringangsdatum verhoogd op basis van het CPI-prijsindexcijfer zoals wordt gepubliceerd door het CBS. 


Betalingen: 

Per maand vooruit te voldoen. 

 

Zekerheidsstelling: 

Waarborgsom of bankgarantie ter grootte van een bruto kwartaalverplichting. 

 

Opleveringsniveau: 

In de staat waarin de ruimte zich op de huuringangsdatum bevindt.  

 

Bijzondere huurvoorwaarden: 

1. Zaken voorgaande huurder  

 

In het gehuurde zijn de volgende zaken aanwezig, welke door huidige huurder achtergelaten worden in het pand en de opvolgende huurder ‘om niet’ overneemt:  

 

Keuken:  

  • Keukenblok inclusief vaatwasser (de koelkast is waarschijnlijk ter overname)  

 

Vergaderruimte: 

  • Glazen wand inclusief deur en gordijnen; 
  • Houten vloer 
  • Boekenplanken  

 

Snijzaal – demonstratiezaal (linker zaal):   

  • Houten vloer
  • Akoestische doeken inclusief ophanging (witte doeken onder het plafond) 
  • Gordijnen wit/ zwart 

 

Snijzaal – sectiezaal (rechter zaal): 

  • Houten vloer 
  • Netwerkpatchkast en afgaande bekabeling 
  • Akoestische doeken inclusief ophanging (witte doeken onder het plafond)
  • Gordijnen en witte akoestische doeken (verticaal) 

 

Dienstingang: 

  • Alarmsysteem 

 

Zolder (boven demonstratiezaal): 

  • Ladder om het dak te bereiken 
  • Archiefkasten

 

Deze zaken maken geen deel uit van het gehuurde en verhuurder heeft met betrekking tot deze zaken geen enkele aansprakelijkheid en/of onderhouds-, herstel of vernieuwingsverplichting. Bij het einde van deze overeenkomst is huurder verplicht deze zaken, mits nog aanwezig en in redelijke staat, in het gehuurde achter te laten.  

 

2. Monument  

Het is huurder bekend dat het gehuurde is aangewezen als gemeentelijk monument, waardoor bijzondere overheidsvoorschriften en vergunningen van toepassing (kunnen) zijn. Voor zover die voorschriften/vergunningen het gebruik/het genot van het gehuurde beperken en/of dit (extra) kosten met zich brengt, komt dit voor rekening en risico van Huurder en zal dit nimmer kwalificeren als een gebrek van het gehuurde in de zin van de Algemene Bepalingen en de wet. 

 

3. Onderhuur 

Onderhuur is toegestaan als verhuurder hier toestemming voor verleent. Voorafgaand aan de onderhuur is schriftelijke toestemming van verhuurder nodig, naast hetgeen staat vermeld in de beleidsnota Vastgoed 2025-2030. Huurder dient er ten alle tijden voor te zorgen dat de onderhuurders passen binnen het bestemmingsplan en de invulling van het pand.  

 

Monumentale status: 

Gemeentelijk monument  

 

Huurovereenkomst: 

Conform standaardmodel Gemeente Utrecht, gebaseerd op het ROZ-model 230A BW (2025) met de daarbij behorende Algemene Bepalingen. 

 

Voorbehoud: 

Bestuurlijke goedkeuring voor het aangaan van een huurovereenkomst, waarvan een Bibob procedure onderdeel kan uitmaken. 

 

Selectiecriteria 

De gemeente Utrecht beoordeelt inschrijvingen op basis van objectieve, redelijke en toetsbare criteria. De criteria zijn opgebouwd uit randvoorwaardelijke criteria (voldoet u niet aan één van deze criteria dan maakt u geen aanspraak op een aanbieding vanuit de gemeente Utrecht) en aanvullende criteria. Ten overvloede zij erop gewezen dat de gemeente daarbij een ruime mate van beleidsvrijheid toekomt.  


Randvoorwaardelijke criteria  

  • Er is sprake van één hoofdhuurder waarvan de uit te oefenen activiteiten passen binnen het (cultuur)beleid van de gemeente Utrecht. 
  • Het niet accepteren van de huursom en huurvoorwaarden, zoals hierboven weergegeven en de huurovereenkomst conform het standaardmodel van de gemeente Utrecht.
  • Het niet accepteren van het voorbehoud bestuurlijke goedkeuring voor het aangaan van een huurovereenkomst.
  • Geen positief advies voortvloeiend uit een eventuele Bibob procedure. 
  • De functie in het gehuurde is niet passend op de locatie, bijvoorbeeld omdat algemeen bekend is dat overlast kan worden verwacht in de omgeving en daardoor met succes bezwaar mogelijk is, dan wel dat de openbare orde en veiligheid in het geding komt. 
  • Het geven van onvoldoende informatie (ook na vragen).


Aanvullende criteria 

Punten worden gegeven aan de hand van zowel een kwalitatieve als kwantitatieve invulling van onderstaand omschreven criteria. In totaal zijn er 100 punten te behalen.


Inhoudelijke criteria (50 punten)

  • Omschrijf op welke wijze u als huurder het pand wilt gaan gebruiken, passend binnen de pijlers van de Cultuurnota 2025-2028 en de doelstelling ten aanzien van culturele voorzieningen uit het uitvoeringsprogramma huisvesting culturele en creatieve sector 2025-2028; Voeg een korte omschrijving toe van uw organisatie (of meerdere organisaties) die het pand zullen gebruiken. U scoort meer punten indien u het gehuurde (in hoofdzaak) gebruikt voor repetities (en presentaties) binnen de podiumkunsten (30 punten).
  • De gemeente hecht waarde aan multifunctioneel ruimtegebruik. Omschrijf op welke wijze u hier invulling aan geeft. (10 punten). 
  • Omschrijf de toegevoegde waarde die uw invulling van het pand heeft voor de omliggende buurt en/of wijk (10 punten).  


Ondernemingsplan (35 punten)

Kandidaat kan een gedegen ondernemingsplan aanleveren, waar onder andere in is opgenomen: 

 

  • Inzage in de financiering door middel van een ingevuld exploitatieplan, de solvabiliteit en de verwachte resultaten (15 punten).
  • Een risicomatrix en kansen en bedreigingen (10 punten).
  • Het beheer van het pand en de administratieve organisatie (10 punten). 


Relatie met gemeente Utrecht (15 punten)

Huurder heeft een samenwerkingsverband, subsidie- of andere financieringsrelatie met de gemeente Utrecht of ondersteunt aantoonbaar (minimaal 80%) de beleidsdoelstellingen.


Afwijkende voorwaarden en condities (20 punten aftrek) 

Door kandidaat gewenste afwijkende voorwaarden en condities ten opzichte van objectinformatie

 

Bezichtiging 

Bent u geïnteresseerd in de locatie? Dan bestaat de mogelijkheid tot bezichtigen. Bezichtigen is mogelijk op vrijdag 21 november tussen 10.00uur en 12.00 uur. Wilt u gebruik maken van de bezichtigingsmogelijkheid dan kunt u zich aanmelden door te mailen naar florine.kluit@utrecht.nl.  

 

Dit pand huren? 

Indien u in aanmerking wilt komen voor het huren van het pand, vraag dan het formulier op dat u kunt gebruiken voor de financiële en inhoudelijke onderbouwing van uw plannen bij Florine Kluit. U dient dit formulier geheel ingevuld uiterlijk voor vrijdag 9 januari 2026, 17.00 uur, te mailen naar florine.kluit@utrecht.nl, onder vermelding van ”Interesse huur Hoefijzerstraat 10”. Indien uw bericht na deze termijn wordt ontvangen, wordt u niet meer meegenomen als geïnteresseerde in de selectieprocedure. Het staat de gemeente vrij om op ieder moment de procedure te beëindigen en niet over te gaan tot een aanbieding van verhuur. U heeft in een dergelijk geval geen enkel recht op vergoeding van kosten en/of schade op welke wijze dan ook. 


Beoordeling van uw reactie 

De vastgoedafdeling van de gemeente zal uw gemotiveerde reactie beoordelen.  

 

Er kunnen zich dan twee situaties voordoen: 

  1. U voldoet aan de gestelde criteria en heeft de hoogste score. De gemeente Utrecht beoordeeld u als meest geschikte potentiële huurder. De gemeente kan dan de stukken opvragen waaruit u kan aantonen dat u voldoet aan de gestelde criteria. Deze stukken dient u binnen 5 werkdagen op verzoek van de gemeente toe te sturen. De gemeente zal u uitnodigen voor een verificatiegesprek. Indien het verificatiegesprek positief is zal de gemeente u een huurvoorstel doen toekomen. Indien de als eerste geëindigde geïnteresseerde afvalt kan de gemeente besluiten de als tweede geëindigde geïnteresseerde uit te nodigen voor een verificatiegesprek, of de hele procedure opnieuw op te starten.   
  2. U voldoet niet aan de gestelde criteria of heeft niet de hoogste score. U maakt dan geen aanspraak op aanhuur van de ruimte en de gemeente zal u hierover informeren.  


Voor deze deelnemers bestaat de mogelijkheid om in rechte op te komen tegen dit bericht van afwijzing, uitsluitend door het aanhangig maken van een procedure in kort geding bij de Voorzieningenrechter in Utrecht. De termijn hiervoor is gesteld op twintig kalenderdagen na de verzenddatum van het bericht van afwijzing. Deze termijn is een vervaltermijn, waarna de deelnemers niet meer in rechte kunnen opkomen tegen de afwijzing. 


Er meldt zich geen gegadigde binnen de gestelde termijn 

Indien zich gedurende de hierboven gestelde reactietermijn geen gegadigden melden is de gemeente Utrecht daarna gerechtigd een huurovereenkomst aan te gaan met de eerste geschikte gegadigde die zich meldt. 

 

Planning  

Voor deze aanbesteding geldt onderstaande planning. De gemeente kan deze termijnen nog aanpassen gedurende de procedure. 

Woensdag 12 november 2025 Publicatie openbare selectie

Vrijdag 21 november 2025 Bezichtigingsmoment locatie 

Vrijdag 9 januari 2026 Sluiting inschrijftermijn  

Vrijdag 20 februari 2026 Bekendmaking uitslag

Streefdatum augustus 2026 Ingangsdatum huurcontract (of zoveel eerder of later als dat eventuele werkzaamheden duren) 


Vragen? 

Bij vragen, neem contact op met Florine Kluit, assetmanager vastgoed, via florine.kluit@utrecht.nl. Indien de vraag en het antwoord relevant is voor overige gegadigden wordt dit op deze website gepubliceerd.   

Oppervlakte 0 m2
Capaciteit 0 personen
Aantal ruimtes 1 ruimtes
  • Locatiesoort:
    Openbare inschrijvingen ▪ Gemeente panden ▪ Ateliers en werkplaatsen ▪ Evenementenlocaties ▪ Danszalen ▪ Kantoren ▪ Welzijnsaccommodaties en buurthuizen ▪ Theater en concertzalen
  • Activiteiten:
    Creatief Professioneel ▪ Educatie ▪ Evenementen ▪ Kantoor ▪ Theater ▪ Wijkactiviteiten