Beschrijving

**TERMIJN IS PER 20-5-2022 VERLOPEN. ER KAN NIET MEER WORDEN GEREAGEERD**


Plaatsingsdatum: 12-05-2022


In het ‘Zomerhuis’ van de Hofstede ter Weide (de boerderij van De Vrijstaat) aan Hof van Monaco in Leidsche Rijn, worden ruimtes geschikt gemaakt voor culturele en publieke activiteiten, als onderdeel van de cultuuras. We zoeken partijen die hier kunnen en willen huren en daarmee een bijdrage leveren aan het cultureel klimaat van Leidsche Rijn. (voor meer informatie en aanmelden kijk ook op https://berlijnpleinutrecht.nl/)


Partijen wordt gevraagd zich te melden als toekomstig huurder van het Zomerhuis. Het pand is bedoeld voor culturele organisaties of makers die bijdragen aan de

- toegankelijkheid van cultuur voor een brede doelgroep

- inclusie en diversiteit van het culturele veld

- verbinding van het culturele veld aan maatschappelijk gesprek, debat en media

- culturele activiteiten voor publiek op deze locatie

- verbinding tussen amateurs en professionals


We hebben voorkeur voor partijen die

- een natuurlijke verbinding hebben met Leidsche Rijn en de toegevoegde waarde voor de cultuuras Leidsche Rijn centrum, aanvullend op bestaande partijen

- een aanvullend en verbonden profiel op De Vrijstaat en op Berlijnplein hebben zoals omschreven in het Ontwikkelplan Toekomst van de Stad


Aanmelding

Een partij kan zich aanmelden voor het totale pand (ca 300 m2 bvo, ca. 200 m2 nvo), maar ook voor een deel. Eén partij heeft nadrukkelijk de voorkeur. De maten staan in de tekeningen in de bijlage. Het is ook mogelijk dat partijen zich melden die een ruimte willen huren, of met gezamenlijk gebruik. Dat sluiten we in deze fase van de planvorming niet uit, maar is alleen mogelijk als een partij als hoofdhuurder kan optreden.


Locatie

Het Zomerhuis is een Rijksmonument aan het Hof van Monaco, in Leidsche Rijn Centrum. Het Zomerhuis is een van de oude agrarische panden in het gebied, en hoort bij de boerderij waar de Vrijstaat al jaren gehuisvest is en waar nu voor de Vrijstaat verbouwd wordt. Het doel is om het Zomerhuis ook te verduurzamen en aan te passen aan het toekomstige culturele gebruik.

Tegenover het Zomerhuis is de nieuwe stadstuin ‘Plantsoen van Boedapest’ net opgeleverd waar ook twee gebouwen (zogeheten ‘werfkelders’) zijn opgeleverd. Een van deze ruimtes is verhuurd aan De Plaatsmaker die er ruimte voor dans, muziek en culturele organisaties exploiteert. Voor de andere werfkelder loopt ook een openbare inschrijving voor huurders, gelijktijdig met deze open call voor het Zomerhuis.


Randvoorwaarden gebouw

- Het betreft een monument, de gemeente Utrecht zal het gebouw restaureren en verduurzamen. Het gebouw wordt in principe casco opgeleverd. Qua interne verbouwing is niet alles mogelijk. De locatie van de centrale trap en oude schachten kunnen niet verplaatst. Daglicht is op de bovenverdieping beperkt mogelijk.

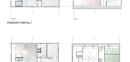
Twee reëel denkbare plattegrond-opties zijn getekend in de bijlage. Dit zijn geen definitieve tekeningen, maar geven een indruk van de mogelijkheden.

- Bij deze locatie is extra gemeentelijke exploitatiesubsidie uitgesloten.

- Het bestemmingsplan staat gemengde functies toe. Voor ‘ondersteunende horeca’ lijken op voorhand geen bezwaren maar dient een aanvraag ingediend te worden, waar huurder zelf verantwoordelijk voor is.


Beoordeling

Beoordeling vindt plaats door de beoordelingscommissie, met daarin vertegenwoordigers van cultuurcluster Berlijnplein (projectleider Trudie Timmerman), een vertegenwoordiger van afdeling culturele zaken gemeente Utrecht (David Langerak) en een vertegenwoordiging van de naastgelegen culturele partners (Kayan Tang). De gemeentelijk projectleider programma en cocreatie van Berlijnplein (Fulco Treffers) zal het proces begeleiden als secretaris van de beoordelingscommissie en is bereikbaar voor eventuele vragen van geïnteresseerde partijen.


De inzendingen zullen worden beoordeeld op basis van een individuele aanvraag, maar ook zal gekeken worden naar de juiste match, in ruimtelijke, financiële en organisatorische zin.



Kosten

De huurprijs is nog niet definitief en afhankelijk van de functie en de raming van de investeringskosten van aanpassing en verduurzaming. Voor een culturele functie die door de Gemeente kan worden ondersteund kan worden uitgegaan van een bandbreedte van €80 tot €100,- per m2 bvo. Dit zijn bedragen per m2 per jaar, exclusief servicekosten, en exclusief BTW.


Planning (onder voorbehoud)

Aanmelding: toesturen aan berlijnplein@utrecht.nl - 20 mei

Brievenelectie mogelijke kandidaten - Week 21

Gesprekken - Week 21/22

Keuze door beoordelingscommissie - Week 22/23

Verdiepende gesprekken met een of meer gekozen partijen om te komen tot een samenwerkingsovereenkomst - Week 23-32

Uitwerking ontwerp en voorbereiding verbouwing, bepalen definitieve huurprijs en afsluiten huurovereenkomst - Week 33-52, Q1 ‘23

Verbouwing - Q2/Q4 ‘23

Huurcontract - Q4 ‘23


Het aanmeldformulier is te vinden via de website https://berlijnpleinutrecht.nl/gebiedsontwikkeling/open-call-zomerhuis-en-werfkelders-leidsche-rijn-centrum/.


Voor vragen en aanmelden:

Neem contact op met Fulco Treffers

info@berlijnpleinutrecht.nl tav Fulco Treffers

Oppervlakte 300 m2
Capaciteit 0 personen
Aantal ruimtes 1 ruimtes
  • Locatiesoort:
    Openbare inschrijvingen
  • Activiteiten:
    Coaching ▪ Creatief Amateur ▪ Creatief Professioneel ▪ Educatie